+7 921 021 96 93
usadka.severles53@yandex.ru

Проект сруба дома

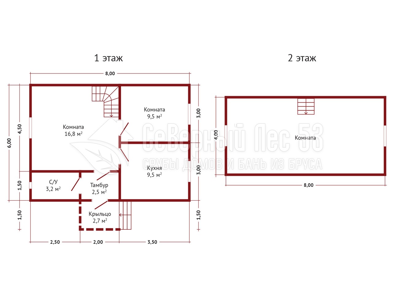
Проект Д-12

Сруб дома из бруса 6х8 м.
Сечение бруса 90×140
835 000 руб.
Сечение бруса 140×140
915 000 руб.
Сечение бруса 190×140
1 035 000 руб.
Форма профилированного бруса
«Овал» или «Прямой» не влияет на цену
Любой проект можем уменьшить или увеличить до нужных Вам размеров. В каждом проекте
можно изменить планировку, количество окон и дверей или же, построим дом по Вашему проекту

Базовая комплектация

Фундамент

Фундамент опорно-столбчатый, каждая опора (тумбочка) состоит из четырех бетонных блоков, размером 200×200×400 мм. Количество опор, в зависимости от проекта, размера дома (для строений размером до 6×6м).

Основание

Брус 100×150 ; 150×150 или 150×200 (естественной влажности), зависит из какого бруса будет собираться дом.

Половые лаги

Брус 150×100 мм (естественной влажности) с шагом 0,6 — 0,8м.

Высота

2,30 м — 2,40 м.

Стены

Профилированный брус 90×140; 140×140 мм или 190×140 мм (естественной влажности), с наружной стороны прямой или под блок-хаус, с внутренней — прямой.

Перегородки

Брус 90×140 мм (естественной влажности) прямой.

Сборка венцов сруба

Брусья скрепляются при помощи металлических гвоздей 200 мм.

Межвенцовый утеплитель

Льно-джутовое волокно.

Балки межэтажного перекрытия

Доска 40×150 мм (естественной влажности)

Фронтоны

Обшиты горизонтально вагонкой (камерной сушки)

Стропильная система

Обрезная доска 40×100мм (естественной влажности)

Обрешетка

Обрезная доска 100×20 мм (естественной влажности), шаг30-40 см.

Гвозди

Для внешней и внутренней чистовой отделки оцинкованные.

Крыша

Двухскатная (прямая или ломанная в зависимости от проекта).

Вынос крыши

По периметру 27-32мм, подшит вагонкой (камерной сушки.)

Кровля

Мягкая, волнистая Ондулин, цвет на выбор (красный, коричневый).

Терраса

В том случае, если терраса проектом предусмотрена, устанавливаются опорные столбы с компенсационными лифтами (домкратами) под усадку.

Сборка дома/разгрузка

Сборка дома и разгрузка материалов на участке заказчика, входит в базовую стоимость

Оплата и доставка

Предоплаты нет. При доставке всех материалов на участок заказчика — оплата 80%. После завершения строительства — 20%. Доставка рассчитывается отдельно, из расчета 100р./км. от производственной базы г.Пестово, Новгородская обл.

Дополнительные услуги

Свайно-винтовой фундамент: 
114 000 руб.
Сборка сруба на деревянные нагеля: 
30 000 руб.
Рубка углов в «тёплый угол»: 
30 000 руб.
Металлическая дверь производство Россия: 
15 000 руб.
Ройки для оконных и дверных проёмов: 
16 000 руб.
Увеличить высоту этажа на 15 см: 
25 000 руб.
Дополнительная межкомнатная перегородка (длина 3 м): 
25 000 руб.
Работы (без учёта материалов) по обработке/покраске фасадов сруба: 
60 000 руб.
Замена кровельного Ондулина на металлочерепицу: 
94 000 руб.
Бытовка 2х3 м каркасно-щитовая с утеплением (если нет временного жилья для плотников): 
22 000 руб.
Аренда бензогенератора на весь срок строительства (если нет электричества на участке): 
15 000 руб.
Дачный туалет 1х1,2 м., каркасно-щитовой: 
15 000 руб.
© 2008-2021 Северный Лес 53, Новгородская область, г. Пестово
Сайт носит исключительно информационный характер. Опубликованная информация ни при каких условиях
не является публичной офертой, определяемой положениями пункта 2 статьи 437 ГК РФ

Расчет вашего проекта

Вы можете оставить заявку на расчет строительства по вашему проекту. Приложите ваш чертеж к сообщению, либо укажите ссылку на проект с другого сайта. Также напишите все ваши пожелания для более точного расчета стоимости.

На расчет потребуется время, как правило 1-2 дня. Менеджер свяжется с вами по готовности.

Если Вы загружаете свой проект, не забудьте нажать
кнопку «Закачать», иначе мы не получим файл

Максимальный размер файла: 2 МБ.
Допустимые типы файлов: gif jpg jpeg png.
Максимальный размер файла: 2 МБ.
Допустимые типы файлов: gif jpg jpeg png.
Максимальный размер файла: 2 МБ.
Допустимые типы файлов: gif jpg jpeg png.
Максимальный размер файла: 2 МБ.
Допустимые типы файлов: gif jpg jpeg png.

Заказать звонок

Заказ проекта